物件一覧に戻る
[中古]戸建 5LDK 仲介手数料20%OFF 堺市堺区錦綾町1丁
1 / 2
売買
外観
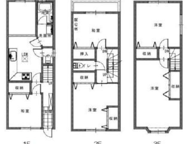
間取り

[中古]戸建 5LDK 仲介手数料20%OFF 堺市堺区錦綾町1丁

販売中
堺市堺区錦綾町1丁
阪堺電車阪堺線 綾ノ町駅 徒歩5分
販売価格
1,980万円
SPECIAL OFFER
仲介手数料割引
20%OFF
住宅ローン支払い例
当店提携紀陽銀行・期間35年・変動金利・ボーナス払無し
元利均等 実質金利0.775% 借入1,980万円として
月々支払 53,840
金利・年数を変えて試算する
※金融機関の審査等によりご希望に添えない場合がございます。諸費用は含まれておりません。

リフォーム情報

リフォーム
工事未実施
リフォーム年月

物件情報

種別
戸建
取引形態
売買
ステータス
販売中
住所
堺市堺区錦綾町1丁
間取り
5LDK
土地面積
52.66㎡(15.9坪)
建物面積
121.08㎡(36.6坪)
構造
木造 3階建
築年月
1994年(平成6年) 11月(築31年)
土地権利
所有権
用途地域
準工業地域
都市計画
市街化区域
私道負担
あり
セットバック
必要
建ぺい率
60%
容積率
200%
他の法令上の制限
準防火
地勢
接道1
西側 公道 幅員約2.9m
現況
居住中
引渡し
相談
駐車場
なし
取引様態
仲介
手数料割引
20%OFF

特記事項

・下水道隣地から引き込み(隣地との覚書あり)
・容積率オーバー、再建築時セットバック必要

特記事項

売主契約不適合責任免責
この物件が気になりましたか?

お気軽にお問い合わせください

関連物件

同じ種別(戸建)の募集中物件

[中古]戸建 3LDK 仲介手数料半額対象 駐車1台可 大阪市住之江区泉1丁目 売買
戸建
[中古]戸建 3LDK 仲介手数料半額対象 駐車1台可 大阪市住之江区泉1丁目
大阪府大阪市住之江区泉1丁目
2,780 万円
[中古]戸建 4DK 駐車3台可 大阪市住之江区粉浜3丁目 売買
戸建
[中古]戸建 4DK 駐車3台可 大阪市住之江区粉浜3丁目
大阪府大阪市住之江区粉浜3丁目
4,000 万円
[中古]戸建 4LDK 仲介手数料半額対象 鉄骨造 ハウスクリーニング済 駐車1台可 大阪市東住吉区湯里4丁目 売買
戸建
[中古]戸建 4LDK 仲介手数料半額対象 鉄骨造 ハウスクリーニング済 駐車1台可 大阪市東住吉区湯里4丁目
大阪府大阪市東住吉区湯里4丁目5-2
2,880 万円